HOME伊勢崎市馬見塚町  中古一戸建住宅 2階 5K 700万円 建物面積83.9m2 土地面積213.9m2 5K 1981/12

販売物件情報


  • 販売物件リストを見る
  • 物件情報を印刷する
  • プリンタの設定で「背景を印刷する」と設定しないと「背景画像」が印刷されないことがあります。印刷の際には、必ず「背景を印刷する」設定にしてください。


伊勢崎市馬見塚町 中古一戸建住宅

物件情報

価格 600万円(↓14.3%値下がり

この物件のお支払い例

頭金0円/ボーナス払い0円

600

15,906

セールスポイント

静かな住環境 豊受小学校まで徒歩5分! 第四中学校まで徒歩3分! 並列駐車3台可能



所在地・交通

所在地 伊勢崎市馬見塚町 
最寄駅 伊勢崎線 剛志 徒歩分数・距離 40分(3200m)
最寄バス停 徒歩分数・距離
小学校校区 豊受小 中学校校区

※学校区は住所から自動判定したものであり、保証できる情報ではございません。
正確な学校区はお問い合わせ下さい。

※住所から自動で地図上にピンが表示されておりますので、実際の場所とは異なる場合があります。
場所についてはお問い合わせ下さい。

物件概要

種目 中古一戸建住宅
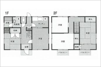
間取り 5K 間取り内訳
土地面積 213.9㎡ 私道面積
建物面積 83.9㎡ 建物構造規模 木造 2階建
築年月(竣工月) 1981年(昭和56年)12月 駐車場  0円
駐車場備考
建ぺい率/容積率 70%/200% 都市計画 市街化調整区域
接道状況 北東3.8m 公道    一方道路
地目 宅地
土地権利 所有権 地勢 平坦
用途地域 無指定
現況 空家 取引態様 媒介

取引条件等

引渡し 相談
引渡し条件

その他

備考 ※告知事項あり
設備 電気、プロパンガス、上水道、浄化槽、庭、駐車場3台分
特徴 日当り良好
諸条件・相談
情報登録日 2025年12月22日 情報更新予定日 2026年2月10日
物件番号 0-2000176793
この物件を見た人の多くは下記の物件も見ています!
伊勢崎市羽黒町  [550万円] [4DK]

3,473

売主様のご要望で一般には公開していない「非公開物件」を会員様だけに限定公開しています。

無料メンバー登録はこちら

ビューハウス店舗だと、ホームページで公開できない物件も6,000件以上の中からご紹介致します!

伊勢崎店へのご来店予約はコチラ!TEL 0800-800-5515 受付時間 9時~19時(水曜日定休)

Web予約限定特典付き!!伊勢崎店に予約する(QUOカード3,000円分プレゼント!!)

太田店へのご来店予約はコチラ!TEL 0120-458-333 受付時間 9時~19時(水曜日定休)

Web予約限定特典付き!!太田店に予約する(QUOカード3,000円分プレゼント!!)

高崎店へのご来店予約はコチラ!TEL 0120-800-383 受付時間 9時~19時(水曜日定休)

Web予約限定特典付き!!高崎店に予約する(QUOカード3,000円分プレゼント!!)