HOME伊勢崎市宮子町  新築一戸建住宅 2階 4LDK 3490万円 建物面積116.75m2 土地面積212.38m2 4LDK 2026/03

販売物件情報


  • 販売物件リストを見る
  • 物件情報を印刷する
  • プリンタの設定で「背景を印刷する」と設定しないと「背景画像」が印刷されないことがあります。印刷の際には、必ず「背景を印刷する」設定にしてください。


伊勢崎市宮子町 新築一戸建住宅

物件情報

価格 3,490万円

この物件のお支払い例

頭金0円/ボーナス払い0円

3,490

92,519

セールスポイント

コンビニや薬局、今話題のロピアなどが近く♪ キッチンにはカップボード、玄関にはSIC、リビング収納にリビング階段! 駐車3台可能でオール電化のくらし♪ ■宮郷小学校…約2084m(徒歩26分) ■宮郷中学校…約1389m(徒歩17分)


360度見えるパノラマ画像


所在地・交通

所在地 伊勢崎市宮子町 
最寄駅 JR両毛線 駒形 徒歩分数・距離 40分(3200m)
最寄バス停 徒歩分数・距離
小学校校区 宮郷小 中学校校区 宮郷中

※学校区は住所から自動判定したものであり、保証できる情報ではございません。
正確な学校区はお問い合わせ下さい。

※住所から自動で地図上にピンが表示されておりますので、実際の場所とは異なる場合があります。
場所についてはお問い合わせ下さい。

物件概要

種目 新築一戸建住宅
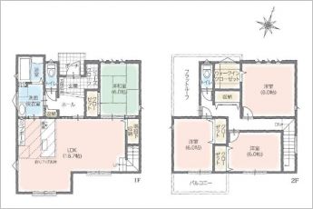
間取り 4LDK 間取り内訳 LDK18.7 和室6 洋室6 洋室6 洋室8
土地面積 212.38㎡ 私道面積
建物面積 116.75㎡ 建物構造規模 木造 2階建
築年月(竣工月) 2026年(令和8年)03月 駐車場 有 0円
駐車場備考
建ぺい率/容積率 60%/200% 都市計画 市街化区域
接道状況 北6m 公道    一方道路
地目 宅地
土地権利 所有権 地勢
用途地域 第一種住居地域
現況 完成 取引態様 媒介

取引条件等

引渡し 相談
引渡し条件

その他

備考
設備 温水洗浄便座、トイレ2ヶ所、追焚機能、浴室乾燥機、システムキッチン、カウンターキッチン、IHクッキングヒーター、食器洗浄乾燥機、ウォークインクローゼット、床下収納、洗髪洗面化粧台、電気、上水道、下水道、複層ガラス、モニタ付インターホン、庭、駐車場3台分
特徴 日当り良好、オール電化
諸条件・相談
情報登録日 2026年1月16日 情報更新予定日 2026年5月9日
物件番号 0-2000177337
この物件を見た人の多くは下記の物件も見ています!
伊勢崎市連取町  [1,980万円] [6DK]
伊勢崎市連取本町  [4,799万円] [6SLDK]
伊勢崎市連取元町  [3,080万円] [4LDK]
伊勢崎市連取町  [3,550万円] [3LDK]

3,530

売主様のご要望で一般には公開していない「非公開物件」を会員様だけに限定公開しています。

無料メンバー登録はこちら

ビューハウス店舗だと、ホームページで公開できない物件も6,000件以上の中からご紹介致します!

伊勢崎店へのご来店予約はコチラ!TEL 0800-800-5515 受付時間 9時~19時(水曜日定休)

Web予約限定特典付き!!伊勢崎店に予約する(QUOカード3,000円分プレゼント!!)

太田店へのご来店予約はコチラ!TEL 0120-458-333 受付時間 9時~19時(水曜日定休)

Web予約限定特典付き!!太田店に予約する(QUOカード3,000円分プレゼント!!)

高崎店へのご来店予約はコチラ!TEL 0120-800-383 受付時間 9時~19時(水曜日定休)

Web予約限定特典付き!!高崎店に予約する(QUOカード3,000円分プレゼント!!)